0
Skip to Content
RYAN WESTERN
Work
About
Contact
Open Menu
Close Menu
RYAN WESTERN
Work
About
Contact
Open Menu
Close Menu
Work
About
Contact
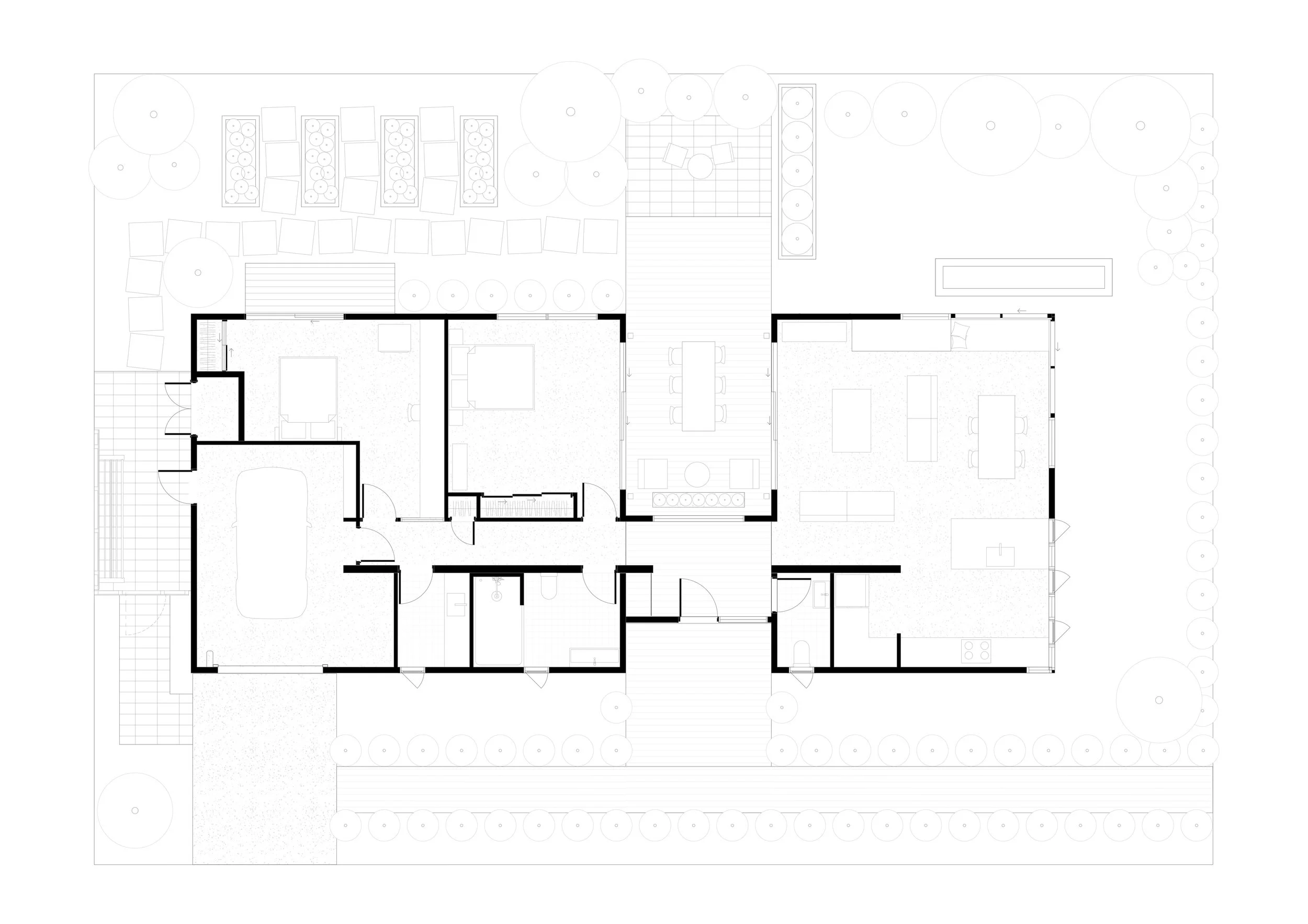
A modest two bedroom home. Completed 2024.
Previous
Previous
Babylon House
Next
Next
Surry Hills Renovation